Beschrijving

Welkom op de Penningslag 4. Deze mooie tussenwoning in de populaire wijk de Slagen is klaar voor een nieuw avontuur. De woonoppervlakte is 115 m2 en het energielabel is B.

Dee woning ligt aan een rustig speelveldje en aan de voorzijde heb je dus een vrij zicht naar buiten.

In de directe omgeving zijn alle voorzieningen te vinden. Winkels, scholen, OV en de grote uitvalswegen zijn allemaal dichtbij en goed te bereiken. De woning is netjes onderhouden en met veel liefde bewoond.

Indeling

Via de voordeur betreed je de woning en kom je in de hal. Hier bevinden zich de meterkast, toilet, de trap en de deur naar de woonkamer. De hal is ruim en krijgt veel natuurlijk licht, doordat de deur naar de woonkamer grotendeels van matglas is en de voordeur ook sierlijke glas in lood details heeft.

De woonkamer is ruim en netjes afgewerkt. De gehele begane grond beschikt over een laminaatvloer en radiatoren. De achterpui bestaat ook grotendeels uit glas, waardoor er ook hier heel veel daglicht binnen komt. 

De keuken is open en opgesteld in een hoek. De keuken beschikt over de volgende inbouwapparatuur: kookplaat (Inductie), combi magenetron-oven, koelkast, vriezer, vaatwasser en afzuigkap.

Eerste verdieping

Op de eerste verdieping bevinden zich twee slaapkamers en een badkamer. De badkamer beschikt over een douche, ligbad en wastafelmeubel. De grootste slaapkamer is een gemaakt door twee slaapkamers samen te voegen. De originele toegangsdeur is blijven zitten, waardoor de originele indeling eenvoudig te herstellen is. Tussen de plattegronden is de originele indeling ook weergegeven.

Tweede verdieping

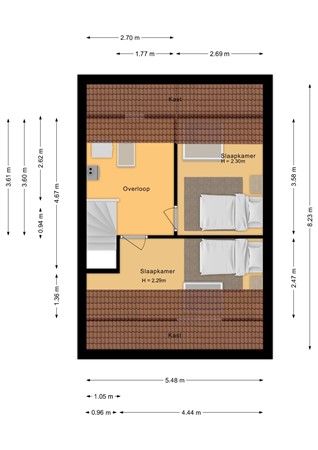
Op de zolderetage bevinden zich nog twee riante slaapkamers. Het is mogelijk om hier uit te breiden met dakkapellen. De aansluiting voor de wasmachine en de CV installatie bevinden zich op de overloop van de zolder.

Tuin

De voortuin is netjes aangelegd en heeft een oppervlak van circa 25 vierkante meter.

De volledige achtertuin is ruim veertien meter diep. Er is een overkapping aan het huis vastgemaakt. De overkapping is circa drie meter lang en over de volle breedste. Ook deze tuin is verzorgt en aan de achterzijde bevinden zich twee bergingen. Eentje is vrijstaand van hout. De ander is van steen. De stenen berging is geïsoleerd Er is een achterom aanwezig.

Bijzonderheden

airco op de begane grond en de grote slaapkamer
Veel originele documentatie aanwezig
vrij zicht aan de voorzijde.

Ben jij benieuwd of deze woning alles in zich heeft wat jij zoekt? Jurriaan leidt je graag rond.

Kenmerken