Beschrijving
Welkom op de Muntslag 11. Deze ruime tussenwoning in de populaire wijk de Slagen is klaar voor een nieuw avontuur. De woonoppervlakte is 126 m2 en het energielabel is A.
In de directe omgeving zijn alle voorzieningen te vinden. Winkels, scholen, OV en de grote uitvalswegen zijn allemaal dichtbij en goed te bereiken. De woning is netjes onderhouden en met veel liefde bewoond.
Aan de voorzijde bevindt zich ruime openbare parkeergelegenheid met de mogelijkheid tot openbaar laden. Tevens kijk je uit over een groot grasveld, met meerdere speeltoestellen, waar de hele buurt graag gebruik van maakt.
De verkopers vertellen:
Alweer heel wat jaren wonen we met liefde en plezier in dit huis.Hier zijn herinneringen gemaakt die een leven lang meegaan: van spelende kinderen in de sneeuw op het grasveld voor de deur tot lange, zonnige zomerdagen vol gezelligheid in de achtertuin.
De woning bood ons warmte, sfeer, ruimte en licht, waardoor elke kamer eenvoudig naar eigen wens in te richten was. Zo hadden de kinderen hun eigen plek om ongestoord te bouwen met lego of muziek te luisteren, terwijl de gezamenlijke ruimtes juist uitnodigden tot samenzijn en huiselijke gezelligheid. Ook nadat de kinderen uit huis gingen, bleef de woning prima aansluiten bij onze wensen. Dankzij verdere verduurzaming werd ons comfort nog groter en kregen enkele kamers een nieuwe invulling, zoals een hobbyruimte, sportkamer en zelfs een royale inloopkast. Ook van de ruime tuin hebben we tot op de dag van vandaag genoten, wat een vrijheid in en rondom de woning.
Nu is dan toch het moment aangebroken om dit geliefde thuis door te geven aan een volgende eigenaar. Een plek waarvan wij hopen dat de nieuwe bewoners er net zo lang en gelukkig van zullen genieten.
Indeling
Via de voordeur betreed je de woning en kom je in de hal. Hier bevinden zich de meterkast, toilet, de trap en de deur naar de woonkamer. De hal is ruim en krijgt veel natuurlijk licht doordat de voordeur grotendeels van glas is.
De woonkamer is ruim en netjes afgewerkt. De gehele verdieping beschikt over een lichte vloer en je kunt verschillende opstellingen en/ of indelingen maken.
De keuken is halfopen en opgesteld in een hoek. De keuken beschikt over de volgende inbouwapparatuur: kookplaat, koel/vries combinatie, vaatwasser en afzuigkap.
Eerste verdieping
Op de eerste verdieping bevinden zich twee slaapkamers en een badkamer. Van origine waren dit drie slaapkamers. De deuren zitten nog op hun originele plaats en het is dus mogelijk deze situatie in ere te herstellen.
Er heeft een traplift in de woning gezeten. Deze is reeds verwijderd, maar op de vloer kun je nog wel een paar kleine sporen zien. Het betreft drie kleine plekjes die netjes zijn opgevuld met een tint die past bij het laminaat. Verder is de gehele etage keurig afgewerkt.
De badkamer is professioneel geïnstalleerd beschikt over een douche, toilet en wastafelmeubel. Tevens is er vloerverwarming aanwezig.
Via de vaste trap kun je de zolderetage bereiken.
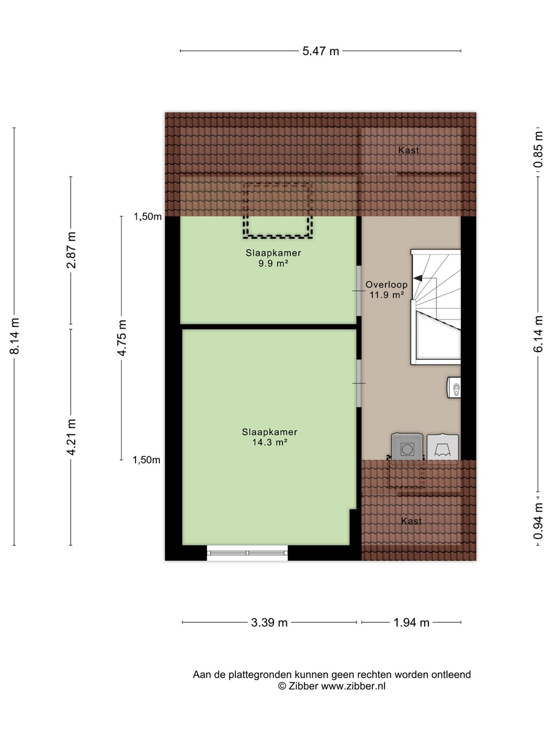
Tweede verdieping
Op de zolderetage bevinden zich nog twee slaapkamers. De aansluiting voor de wasmachine, droger bevinden zich op de overloop van de zolder. Ook de mechanische ventilatiebox bevindt zich hier. Er is recent een hybride warmtepomp geïnstalleerd. Dit in combinatie met de zonnepanelen maken deze woning erg energiezuinig.
Het huidige energielabel A is destijds opgesteld zonder de toevoeging van de hybride warmtepomp.
Tuin
De achtertuin is ruim en verzorgd. De ligging is Zuidoost en aan de achterzijde bevindt zich een ruime berging. Er is een achterom aanwezig en de toegang is zo groot dat je gemakkelijk met een motorfiets achterom kunt.
Bijzonderheden
De woning is reeds bouwkundig gekeurd. Het rapport is ter inzage bij de documentatie.
Ben jij benieuwd of deze woning alles in zich heeft wat jij zoekt? Jurriaan leidt je graag rond.